CASA DE PUEBLO EN MANACOR

  • VENDIDO
Carrer de Sant Jeroni, sa Torre, Manacor, Llevant, Illes Balears, 07500, España
Venta Exclusiva Vendido
CASA DE PUEBLO EN MANACOR
Carrer de Sant Jeroni, sa Torre, Manacor, Llevant, Illes Balears, 07500, España
  • VENDIDO

Descripción general

ID de propiedad: FM-2049
  • Casa Unifamiliar
  • Tipo de propiedad
  • 3
  • Habitaciones
  • 1
  • Baño
  • 1
  • Garaje
  • 240
  • m2

Descripción del inmueble

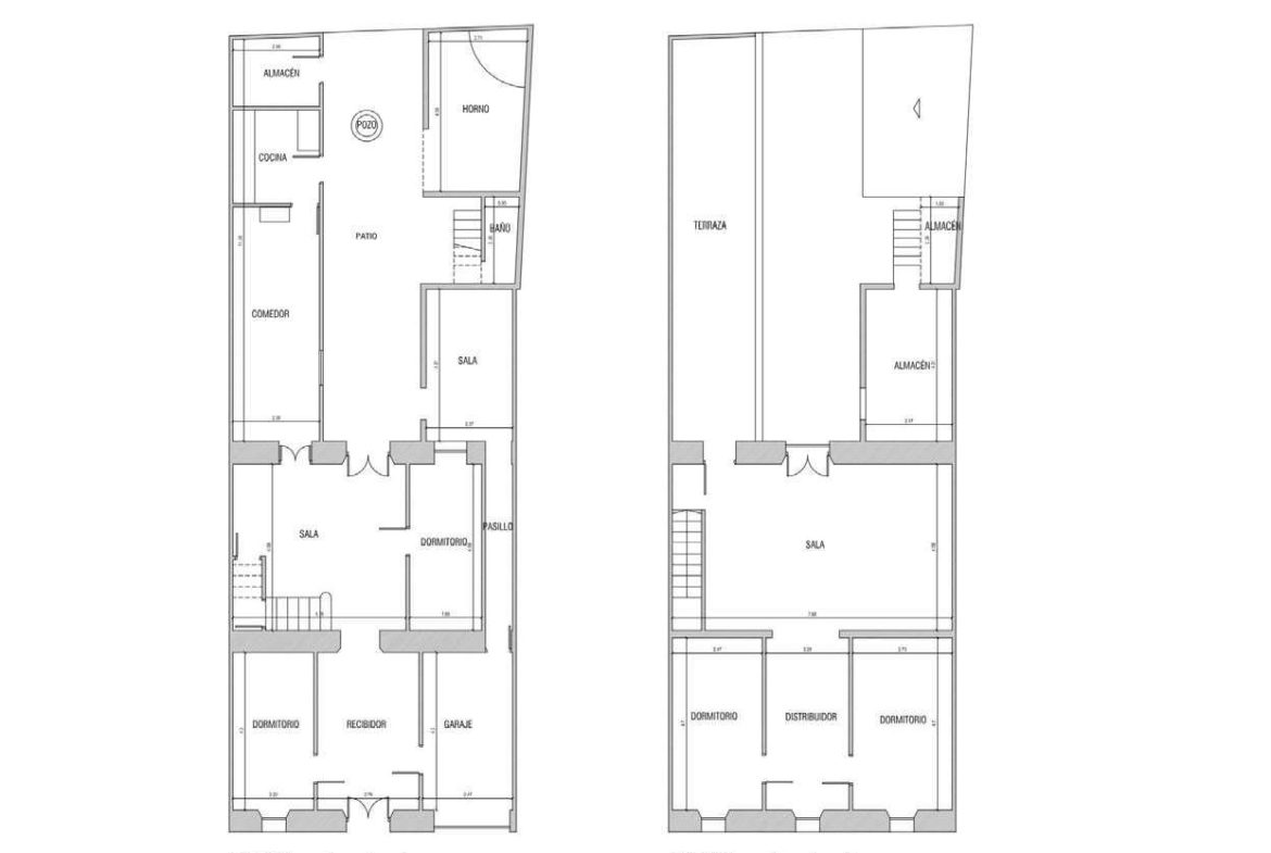
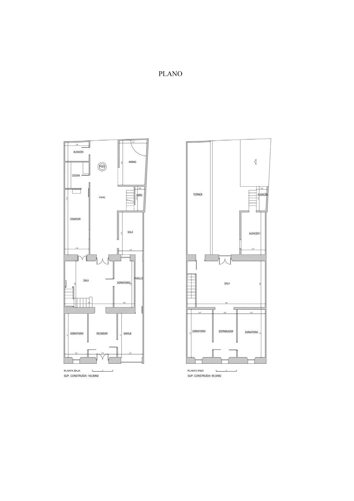
Excelente Casa de Pueblo a reformar con estructura y cubierta en buen estado de conservación, situada en el barrio de Fartàrix con toda clase de servicios cercanos. Vivienda de 240 m2 distribuida en Planta Baja de 140 m2 con Recibidor, Salón Comedor, Cocina, Baño, Almacén y Garaje. Planta Primera de 100 m2 distribuida en 4 estancias y terraza. Patio de 34 m2. Muy luminosa y espaciosa

Documentos de propiedad

8198015ED1789N0001IQ
PLANO

Dirección

Google Maps
  • Ciudad Manacor
  • Estado Baleares
  • Area Fartaritx
  • País España

Detalles

Actualizado en enero 18, 2026 a 3:27 pm
  • ID de propiedad: FM-2049
  • Precio: VENDIDO
  • Tamaño de la propiedad: 240 m2
  • Área Terrestre: 174 m2
  • Habitaciones: 3
  • Baño: 1
  • Garaje: 1
  • Tamaño del garaje: 12
  • Tipo de propiedad: Casa Unifamiliar
  • Estado de la propiedad: Venta

Detalles adicionales

  • Patio: 24 m2

Calculador de hipotecaria

Mensual
  • Pago inicial
  • Monto del préstamo
  • Pago mensual de la hipoteca
  • Impuestos Sobre el Inmueble
  • Seguro de hogar
  • PMI
  • Tarifas mensuales de HOA
%
%
%
%

Solicitar visita

Informacion

Video

¿Qué hay cerca?

Proporcione su clave API Clic aquí

Clasificación energética

  • Clase energética: E
  • Índice de desempeño energético global:
  • A+
  • A
  • B
  • C
  • D
  • | Clase energética E
    E
  • F
  • G
  • H

Información de contacto

View Listings
fincaria
  • fincaria

Pregunte por el inmueble

0 Comentario

Ordenar por:
Escribe una reseña

Escribe una reseña

Recomendados

Comparar listados

Comparar
fincaria
  • fincaria

Diferencias entre venta con contrato de exclusiva y nota de encargo

Exclusiva Nota de encargo
Informe de valoración gratuito
Publicación en web
Publicación Top en portales
Video
Certificado energético
Cédula de habitabilidad
Fotografía profesional
Sección destacados web

CREAR ALERTA